








📍 Locație excelentă pentru familii care își doresc liniște, intimitate și confort, într-o zonă în plină dezvoltare, aproape de oraș.
👣 Construcție individuală – fără pereți comuni
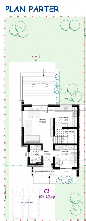
📐 106,95 mp utili
🌳 Teren generos de 310 mp
Compartimentare eficientă:
🔸 Parter:
▪️ Hol de acces
▪️ Living spațios
▪️ Bucătărie separată (cu posibilitate de închidere)
▪️ Birou
▪️ Baie + zonă de depozitare
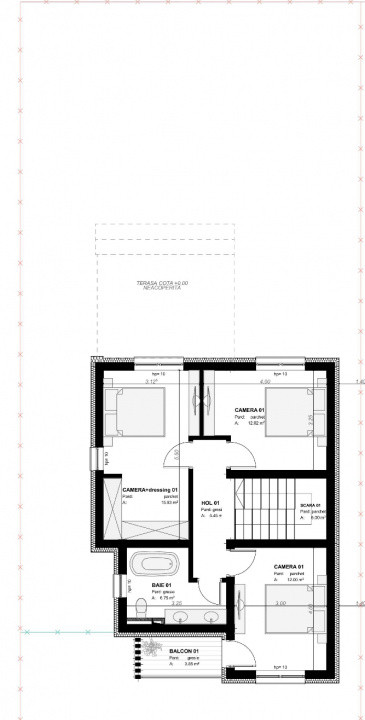
🔸 Etaj:
▪️ 3 dormitoare
▪️ Baie + dressing
▪️ Balcon
🌿 Exterior:
▪️ Terasă amenajată pentru relaxare
▪️ 2 locuri de parcare amenajate în curte
🔧 Dotări și finisaje de calitate:
✔️ Tâmplărie PVC Salamander 76 Premium cu sticlă triplă
✔️ Izolație cu polistiren de 15 cm
✔️ Toate utilitățile: gaz, apă, canalizare, curent trifazic
✔️ Design modern, materiale durabile și eficiență energetică
📌 Bugete incluse în prețul la cheie:
▪️ Gresie/faianță/parchet – 150 lei/mp
▪️ Uși interioare – 1.500 lei/buc
▪️ Echipare completă băi – 10.000 lei
📅 Termen de finalizare: Septembrie 2025
📞 Contactează-ne pentru mai multe detalii sau pentru a programa o vizionare!
📞 0766525551 - Răzvan
🤝 Consultanță financiară GRATUITĂ prin partenerul nostru Family Conea - Personal Broker
📞 0753323791 - Delia
🔑 Casa ta individuală te așteaptă în Săcălaz!